The Magnolia

rendering of a home known as the Magnolia, built by Darla's Creek
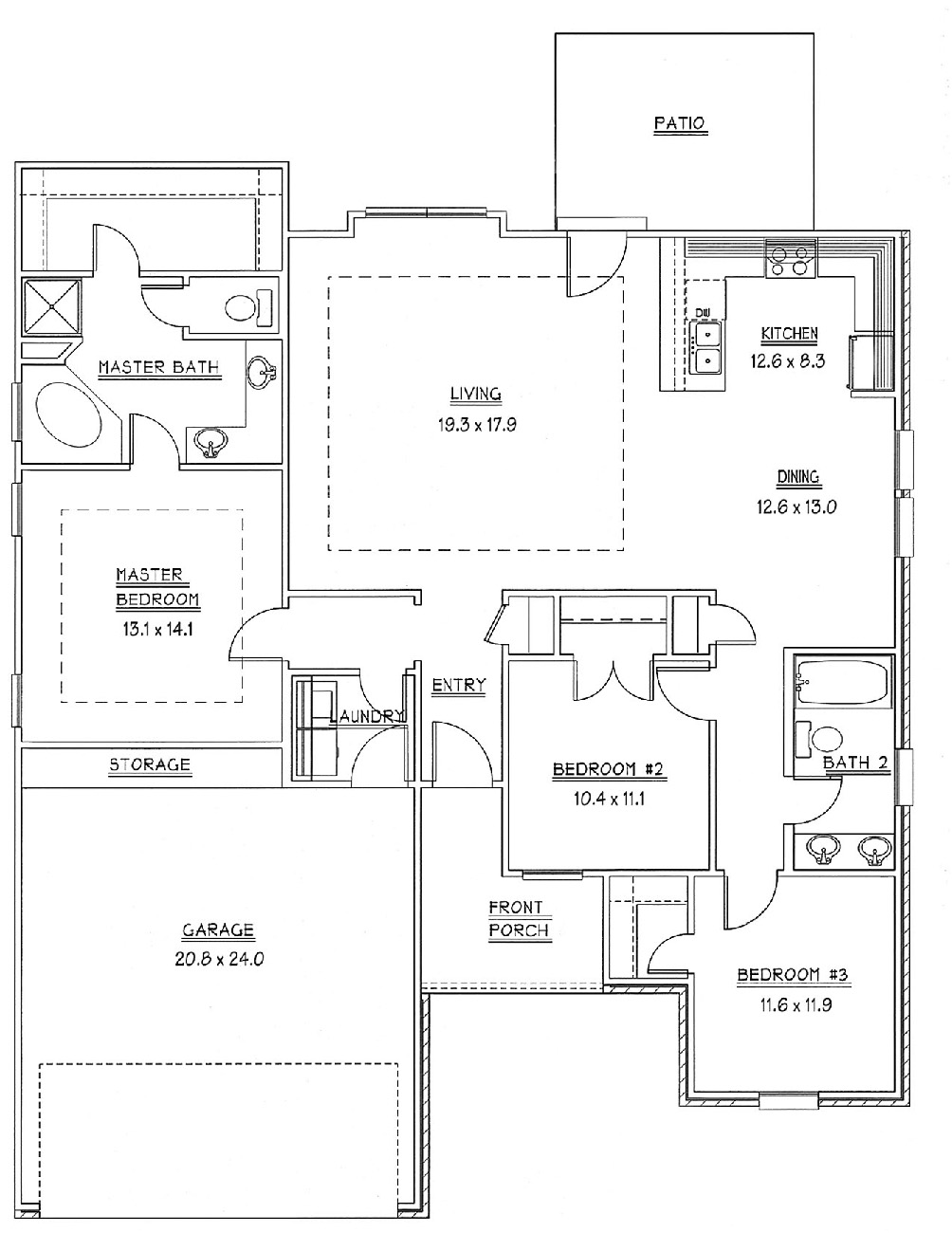
floorplan draft of the Magnolia built by Darla's Creek

Living Area: 1,549 sq. ft.
Front Porch: 73 sq. ft.
Garage/Storage: 477 sq. ft.
TOTAL AREA: 2,099 sq. ft.