The Holly

rendering of a home known as the Holly, built by Darla's Creek
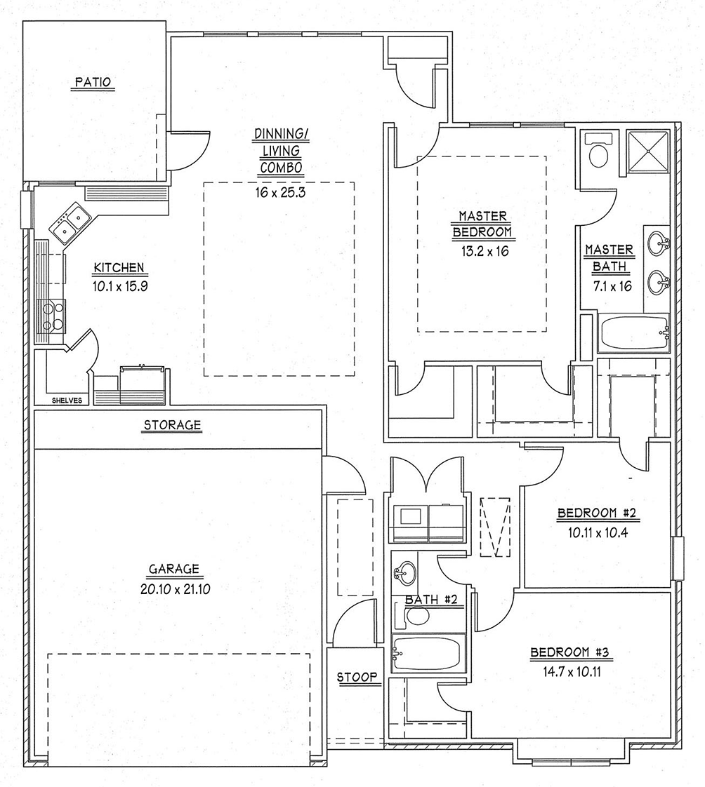
floorplan draft of the Holly built by Darla's Creek

Living Area: 1,525 sq. ft.
Side Porch: 27 sq. ft.
Garage/Storage: 505 sq. ft.
TOTAL AREA: 2,057 sq. ft.